E-Kabin HS Serisi – Harici Modüler Elektrik Panosu
E-Kabin HS, zorlu dış ortam koşullarına dayanıklı, modüler yapıya sahip bir elektrik panosu çözümüdür. IP55 ve IP41 koruma seviyelerine sahip bu seri, genişletilebilir yapısıyla çoklu sistem kurulumlarına olanak tanır. Özellikle sanayi, altyapı ve dış mekan enerji uygulamaları için geliştirilmiştir.
Toz, su ve dış etkenlere karşı koruma sağlayan yapısı, ISO 12944-2’ye göre yüksek korozyon dayanımlı boya ile güçlendirilmiştir. Üstten kaldırma halkaları, modüler baza, paslanmaz kilit ve fan yerleşim imkanları sayesinde hem güvenli hem de esnek montaj çözümleri sunar.
E-Kabin HS – Teknik Özellikler
| Özellik | Açıklama |
|---|---|
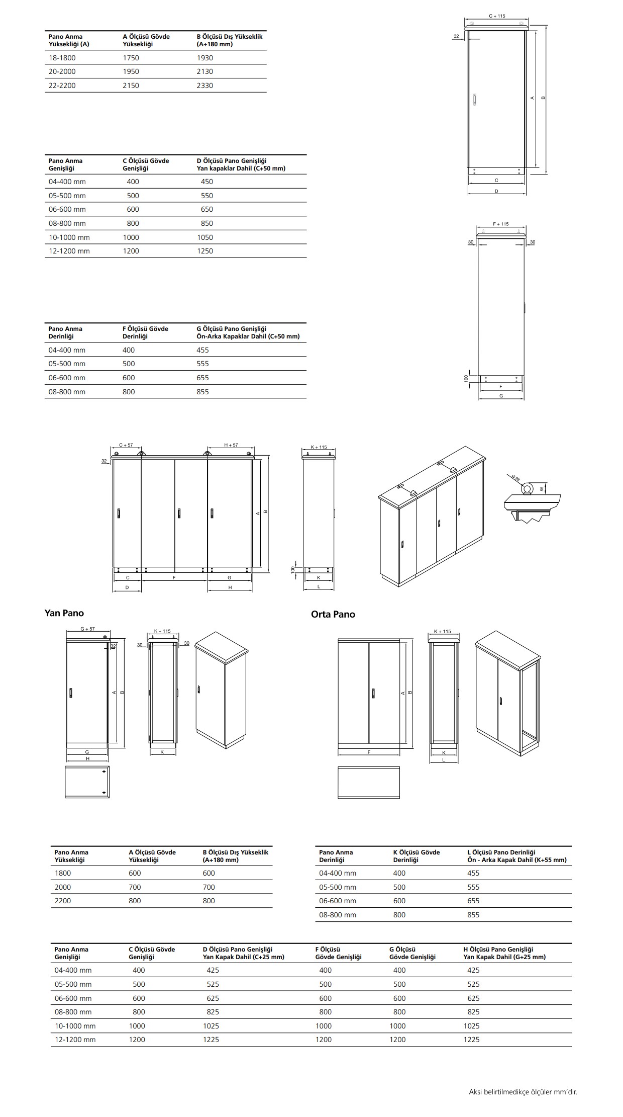
| Montaj Şekli | Dikili Tip |
| Modülerlik | Modüler |
| Kullanım Yeri | Harici |
| Koruma Sınıfı | IP55, IP41 (ön kapı tipine bağlı olarak) |
| Boya | ISO 12944-2’ye göre yüksek korozyon dayanımlı |
| Renk | Standart RAL 7035 |
| Çevre Şartları Sınıfı | EN 60721 – 3 – 3’e göre IE37 |
| Uygunluk | IEC 61439-1, IEC 62208, IEC 60529, IEC 62262 |
E-Kabin HS – Ürün Özellikleri
-
Modüler Yapı: Yan yana çoğaltılabilir iskelet sistemi ile çoklu sistem entegrasyonu sağlanır.
-
Ön/Arka Kapı Seçeneği: Gerekli uygulamalarda ön ve arka kapı değiştirilebilir.
-
Fan İmkanı: Çatı altına yerleştirilebilen fan ile içeriden erişim sağlanır.
-
Taşıma Kolaylığı: Üst askı halkaları ile vinçle taşıma kolaylaştırılmıştır.
-
Paslanmaz Kilit Opsiyonu: Kimyasal dayanımı yüksek plastik yerine 316 kalite çelik kilit kullanılabilir.
-
Üst Üste Baza Montajı: Yükseltme ihtiyaçlarında modüler baza sistemi ile çözüm sağlanır.
-
Ortak İç Aksesuar Uyumu: Tüm E-Kabin serileriyle iç montaj elemanları uyumludur.
Kullanım Alanları
-
Dış Mekan Enerji Dağıtım Sistemleri
-
Endüstriyel Kontrol ve Otomasyon Alanları
-
Telekom ve Altyapı Sistemleri
-
Arıtma ve Atık Yönetimi Tesisleri
-
Kimya ve Gıda Sanayi Kurulumları
-
Modüler Elektrik Dağıtım Odaları
Sıkça Sorulan Sorular (SSS)
1. E-Kabin HS modüler mi, monoblok mu?
Modüler yapıya sahiptir, yan yana birden fazla kabin montajı yapılabilir.
2. Bu ürün dış ortamda kullanılabilir mi?
Evet, IP55 koruma seviyesi ve korozyon dayanımlı boya ile dış ortam için uygundur.
3. Paslanmaz çelikten üretiliyor mu?
Hayır, galvaniz sac üzeri boyalıdır. Ancak kilit aksesuarı opsiyonel olarak paslanmaz çelik tercih edilebilir.
4. Ürünle birlikte fan geliyor mu?
Hayır, fan aksesuar olarak ayrıca sipariş edilir. Ancak çatı altında konumlandırma ve içeriden erişim mümkündür.
5. Ürün taşınabilir mi?
Evet, taşıma halkaları sayesinde güvenli bir şekilde üstten kaldırılarak taşınabilir.
6. E-Kabin HS, diğer modellerle uyumlu mu?
İç aksesuarları tüm E-Kabin serileriyle ortaktır. Mevcut sistemlerinizle rahatça entegre edebilirsiniz.














Değerlendirmeler
Henüz değerlendirme yapılmadı.