E-Kabin K – Yüksek Koruma Sınıfına Sahip Monoblok Elektrik Kabini
E-Kabin K Serisi, iç mekanlarda güvenli ve uzun ömürlü kablo sistemleri yönetimi için geliştirilmiş, IP55 koruma sınıfında, dayanıklı galvaniz sacdan üretilmiş elektrik panolarıdır. Dahili uygulamalarda yüksek performans arayan işletmeler için etkili bir çözüm sunar. Bu monoblok yapılı kabinler, EN 61439-1, EN 62208 ve EN 60529 standartlarına tam uyumlu olup hem estetik hem fonksiyonel avantajlar sağlar.
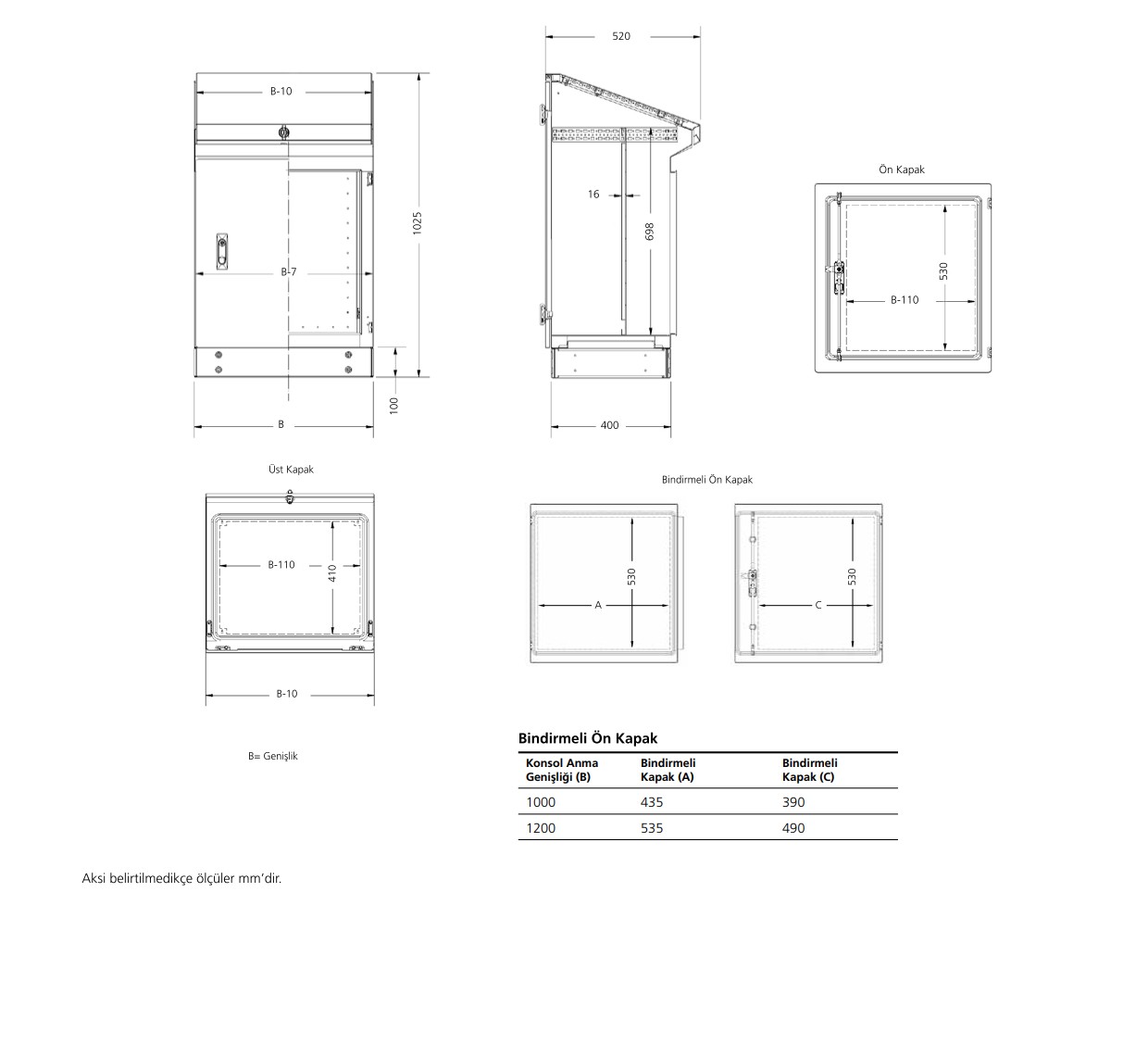
E-Kabin K Teknik Özellikleri
| Özellik | Açıklama |
|---|---|
| Tip | Monoblok |
| Kullanım Yeri | Dahili (iç mekan) |
| Koruma Sınıfı | IP55 |
| Boyası | Epoksi – Polyester Toz Boya |
| Malzeme | Galvanizli sac |
| Standart Renk | RAL 7035 |
| Uyumlu Standartlar | IEC 61439-1, IEC 62208, IEC 60529 |
E-Kabin K – Ürün Özellikleri
-
Menteşeli Arka Kapak: Kolay erişim ve montaj avantajı.
-
Yan Yüzey Optimizasyonu: Maksimum ekipman yerleşimi sağlar.
-
Kapak İçi Destek Profilleri: Yapısal sağlamlığı artırır.
-
Poliüretan Conta: Toz ve suya karşı maksimum koruma.
-
Derinlik Ayarı: Montaj plakasının konumlandırılması kolaydır.
-
Pistonlu Üst Kapak: Güvenli açma-kapama için hidrolik destek.
-
Alt Örtü Düzeneği: Fırçalarla zenginleştirilebilir modüler yapı.
Kullanım Alanları
-
Endüstriyel otomasyon sistemleri
-
Veri merkezleri ve sistem odaları
-
Ofis içi elektrik dağıtım altyapıları
-
Ticari bina enerji kontrol panoları
-
Sayaç dolapları ve kontrol istasyonları
Ürün Avantajları
-
Dayanıklı Yapı: Galvanizli gövde ve IP55 koruma ile uzun ömürlü kullanım.
-
Montaj Kolaylığı: Standart el aletleriyle hızlı kurulum.
-
Geniş Uyumluluk: Uluslararası standartlara uygunluk.
-
Modüler Yapı Desteği: Opsiyonel parçalarla kişiselleştirilebilir.
-
Estetik ve Fonksiyonel: Modern tasarımıyla şık görünüm sunar.
Sıkça Sorulan Sorular (SSS)
1. E-Kabin K dış ortamda kullanılabilir mi?
Hayır, bu ürün iç mekan uygulamaları için tasarlanmıştır. IP55 koruma ile toz ve sıvı sıçramalarına karşı dayanıklı, ancak doğrudan dış ortamlar için önerilmez.
2. Montajı sırasında ekstra ekipmana ihtiyaç var mı?
Standart el aletleriyle kolaylıkla kurulabilir. Opsiyonel ikinci montaj plakası ve fırçalar ayrıca sipariş edilebilir.
3. Hangi belgelere sahiptir?
IEC 61439-1, IEC 62208, IEC 60529 ve IEC 62262 gibi uluslararası standartlara tam uyumlu.
4. Alternatif renk seçeneği sunuluyor mu?
Standart olarak RAL 7035 (açık gri) renkte üretilir. Talebe bağlı özel renkler için üreticiyle iletişime geçebilirsiniz.
5. E-Kabin K Serisi ile N Serisi farkı nedir?
K Serisi monoblok yapıya sahiptir ve genellikle sabit alanlarda tercih edilirken; N Serisi daha geniş boyut seçenekleri sunar ve modüler uygulamalarda kullanılır.






Değerlendirmeler
Henüz değerlendirme yapılmadı.